
Old Well Cottage, Lyndon
Old Well Cottage
No.7 Post Office Lane, Lyndon, Oakham, Rutland LE15 8TZ
No.7 Post Office Lane, Lyndon
Oakham, Rutland LE15 8TZ
Rent: £tbc Per Calendar MonthPrintable Particulars >>
A unique country cottage located on Post Office Lane in the quiet village of Lyndon, Rutland. Old Well appears on 17th century maps!
Constructed from attractive sandstone with a thatch and Collyweston slate roofing combination. Inside, many period features remain, including exposed oak beams, tiled and timber flooring, and a lovely feature fireplace. Previously extended and refurbished throughout, this is principally a three-bedroom property, with the study providing a proven fourth-room solution.
Those looking to enjoy time outside will find the enclosed garden a delight. In addition, ample space is available for access and parking.
This property is equally suitable for professionals or families.
- Three/Four Bedrooms
- Family Bathroom
- En-Suite Shower Room
- Fitted Kitchen
- Sitting Room & Open Fire
- Study
- Central Heating
- Boot Room & WC
- Large Enclosed Garden
- Ample Parking Area
- Three/Four Bedrooms
- Family Bathroom
- En-Suite Shower Room
- Fitted Kitchen
- Sitting Room & Open Fire
- Study
- Central Heating
- Boot Room & WC
- Large Enclosed Garden
- Ample Parking Area
Walkaround
Access the property on foot off Post Office Lane or enter with a vehicle through the main gates from the village road, this leads into a gravel driveway that expands into a parking area with turning siding.
The spacious entrance room, with WC, provides the perfect place to de-clobber before proceeding into the main cottage. Moving inside, the first stop on the tour brings you to the brightly lit kitchen and dining area with views out across the extensive garden. Oak-fitted units incorporate a built-in double larder with fridge/freezer, a professionally installed electric range cooker is also included, and there’s a tiled floor throughout. Most tenants put a farmhouse-style table in this room for day-to-day dining. Next is the sitting room, located just beyond the original front door entrance area, providing a comfortable carpeted environment featuring a prominent oak beam, window seat, and fireplace. Then, moving on to the timber floored more 'formal' dining room, a light and airy space similar in practical size to the sitting room; it is worth noting that many past tenants have instead used this as a secondary sitting room. Lastly on the ground floor is the study, a cosy room previously utilised as an office and more recently as a fourth bedroom, thus suiting various family requirements, guests or home working.
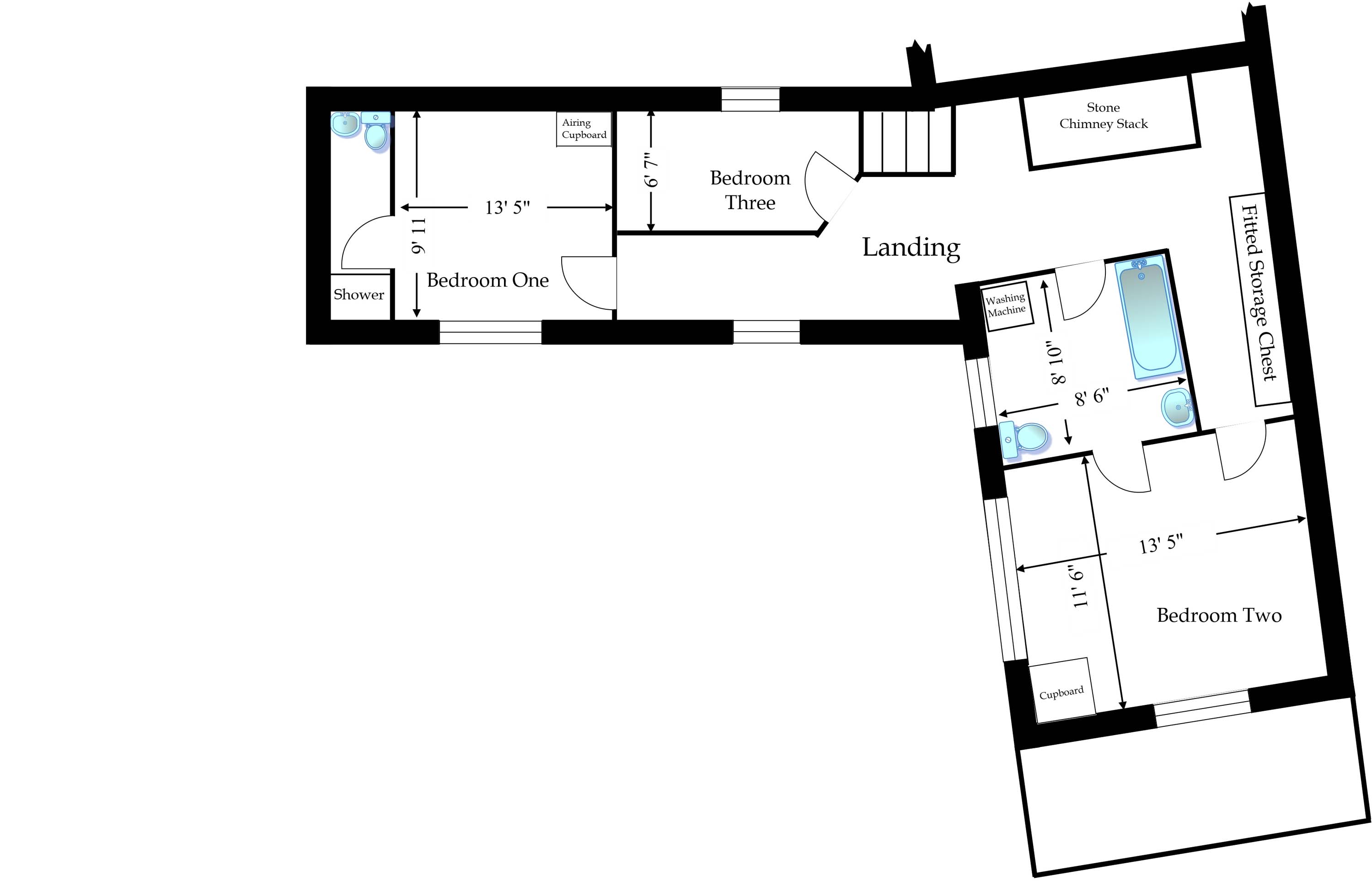
To reach the first floor, return to the original entrance area and ascend the stairway to the attractive carpeted landing area with exposed stone chimney breast, oak roof beams and cleverly engineered storage spaces. Straight ahead is the family bathroom, and beyond that is bedroom two, the largest of the three, with a lovely timber floor and built-in cupboard. The single bedroom three is found just off the landing, and at the far end, bedroom one has an en-suite and a great view across the garden and grazing paddocks beyond.
Outside, the large mature garden is afforded privacy by the surrounding hedging, with various trees also providing shelter from warm sunny days. Planted borders offer seasonal colour, and established shrubbery enhances the overall effect. Plenty of lawn space allows for play or relaxation, and the paved area provides a solid dining area. There are even some raised beds for growing produce, and how about harvesting grapes from the productive vine? Further storage provision is available externally in a locked cupboard next to the entrance room, and a summer house and shed also remain on-site in a usable condition.
Services
The property has a modern oil-fired central heating and hot water installation with radiators in every room. In the kitchen, there's an electric range cooker and built-in fridge-freezer. Located outside is a storage tank for the heating oil.
There are connections to mains water, sewerage, and electricity.
Lyndon benefits from fibre broadband internet with download speeds typically available up to around 50Mbps.
Rent
£tbc Per Calendar Month.The Landlord is not bound to accept the highest or indeed any offer.
Terms
To be let unfurnished (except for flooring materials, range, fridge/freezer) on an Assured Shorthold Tenancy Agreement for an initial term of one year with the prospect of an extension if parties agree.
A deposit of £tbc is payable (held in a deposit protection scheme).
Applicants must complete a questionnaire, reference, and right-to-rent check.
The Tenant is responsible for routine maintenance and interior decoration. The Landlord takes care of all major repairs and exterior decoration.
A copy of the proposed tenancy agreement is available by prior arrangement.
Council Tax
Classified Band EThe 2025-2026 annual charge is £3,184.91
For further information visit the Rutland County Council website.
Energy Performance
EPC Rating E41 (view latest certificate).Interested?
Please refer to the information for new tenants.Misrepresentation Act 1967
This information does not constitute any part of an offer or contract. No responsibility is taken for any error, omission or misstatement. The pictures and plans may not be up-to-date and not necessarily accurate. No person in the employment of the Lyndon Estate has any authority to make or give any representation or warranty whatsoever concerning this property.
Rent
£tbc Per Calendar Month.The Landlord is not bound to accept the highest or indeed any offer.
Terms
To be let unfurnished (except for flooring materials) on an Assured Shorthold Tenancy Agreement for an initial term of one year with the prospect of an extension if parties agree.
A deposit of £tbc is payable
(held in a deposit protection scheme).
Applicants must complete a questionnaire, reference, and right-to-rent check.
The Tenant is responsible for routine maintenance and interior decoration. The Landlord takes care of all major repairs and exterior decoration.
A copy of the proposed tenancy agreement is available by prior arrangement.
Council Tax
Classified Band EThe 2022-2023 annual charge is £3,184.91
For further information visit the
Rutland County Council website.
Energy Performance
EPC Rating E41 (view latest certificate).
Interested?
Please refer to the information for new tenants.
Misrepresentation Act 1967
This information does not constitute any part of an offer or contract. No responsibility is taken for any error, omission or misstatement. The pictures and plans may not be up-to-date and not necessarily accurate. No person in the employment of the Lyndon Estate has any authority to make or give any representation or warranty whatsoever concerning this property.

Ground Floor Layout
Entrance Room: 4.0 x 2.2m
Wood laminate floor, central heating boiler, radiator, access to WC and exterior door.
Kitchen & Dining Area: 7.9 x 3.0m
Tiled floor, oak fitted units, larder with built-in fridge/freezer, AGA range cooker with extractor hood above, plumbing for dishwasher or washing machine, radiator.
Sitting Room: 4.2 x 4.3m
Carpeted throughout, open fire with stone surround, window bench seat, radiator.
Dining Room: 4.2 x 3.4m
Timber floorboarding, radiator, open fireplace.
Study: 4.2 x 2.2m
Carpeted floor, radiator.

First Floor Layout
Bedroom One: 4.1 x 3.0m
Carpeted floor, built-in airing cupboard, en-suite, radiator.
Bedroom Two: 4.1 x 3.5m
Timber floorboarding, built-in wardrobe, radiators, access to bathroom and landing area.
Bedroom Three: 3.5 x 2.0m
Carpeted floor, radiator.
Bathroom: 2.6 x 2.7m
Timber floorboarding, toilet, wash basin, bath with power shower above and glass screen, wall cabinet, plumbing for washing machine, radiator.
Landing
Carpeted floor, storage shelving, storage chest, radiators.
seated.tulip.hound